Neue Schwimmbad-Pläne | Wunstorfer-Stadtanzeiger

Neue Schwimmbad-Pläne

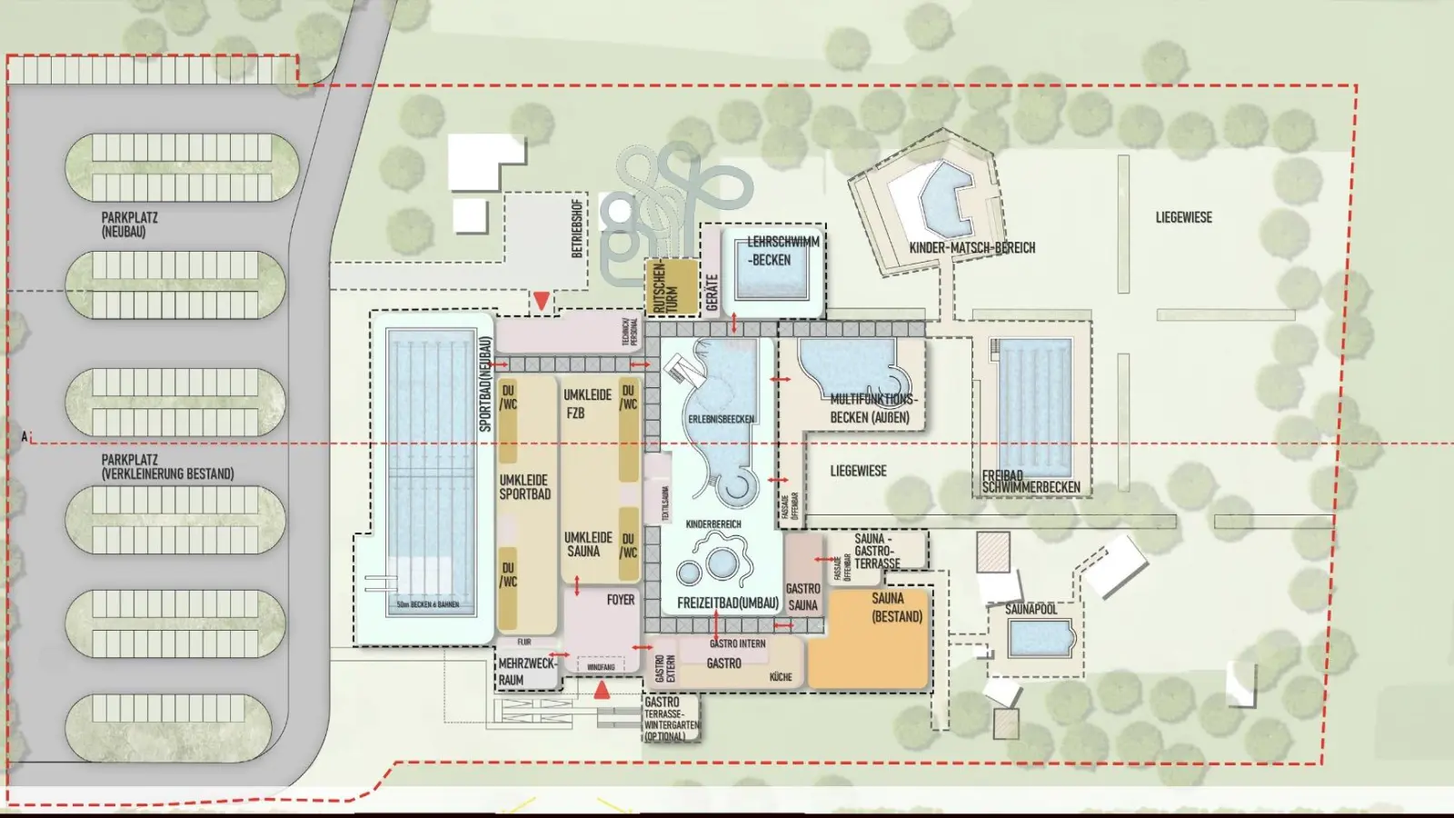
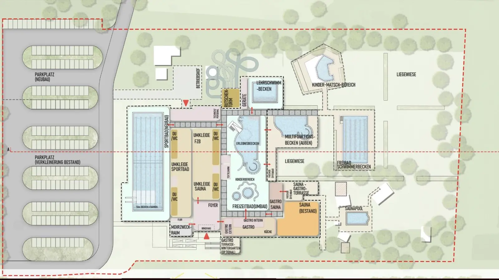
Aus der Konzeptstudie: Die angedachte Neustrukturierung der einzelnen Bereiche. (Foto: Stadt Wunstorf)
Aus der Konzeptstudie: Die angedachte Neustrukturierung der einzelnen Bereiche. (Foto: Stadt Wunstorf)
Aus der Konzeptstudie: Die angedachte Neustrukturierung der einzelnen Bereiche. (Foto: Stadt Wunstorf)
Aus der Konzeptstudie: Die angedachte Neustrukturierung der einzelnen Bereiche. (Foto: Stadt Wunstorf)
Aus der Konzeptstudie: Die angedachte Neustrukturierung der einzelnen Bereiche. (Foto: Stadt Wunstorf)

Die neuen Pläne für das Wunstorf Elements sorgen für Diskussionen im Stadtrat. Bürgermeister und Bäderbetriebe haben die überarbeiteten Entwürfe vorgestellt, die bereits am 17. Dezember in der Ratssitzung beschlossen werden sollen (wir berichteten). Das Verfahren stößt bei den Grünen auf gemischte Reaktionen.

Aus der neuen Konzeptstudie: Die Visualisierung der Außenfassade. (Foto: Stadt Wunstorf)
Aus der neuen Konzeptstudie: Die Visualisierung der Außenfassade. (Foto: Stadt Wunstorf)

Umbau des Hallenbades

Die Bäderbetriebe planen eine umfassende Modernisierung des Wunstorf Elements. Das neue Konzept sieht zwei Bauabschnitte vor und garantiert den Schwimmbetrieb während der Umbauphase. Der bereits bekannte Kostenrahmen von 38 Millionen Euro soll weiterhin gelten. Ein neuer Grundsatzbeschluss im Stadtrat wird noch im Dezember angestrebt.

Fraktionsvorsitzender Marvin Nowak bestätigt auf Nachfrage des Stadtanzeigers, dass die Grünen inzwischen informiert wurden. Demnach habe es in dieser Woche auch ein Treffen der Fraktion und des Parteivorstandes mit dem Aufsichtsratsvorsitzenden der Bäderbetriebe, Thomas Silbermann, gegeben. Grundzüge der Planung waren der Fraktion aber bereits bekannt. Innerhalb der Fraktion gibt es unterschiedliche Bewertungen. Einige Mitglieder empfinden den zeitlichen Vorlauf als sehr knapp und sehen einen Beschluss noch im Dezemberrat – mit 28 Tagesordnungspunkten und Haushaltsreden – als problematisch. Auf der anderen Seite habe der Rat bereits 2022 den Auftrag zur Überarbeitung erteilt und ein erneuter Beschluss sei formal nicht zwingend erforderlich. Er soll vor allem politischen Rückhalt geben.

Einigkeit besteht darin, dass Wunstorf ein Schwimmbad braucht. Über die Ausgestaltung gibt es jedoch verschiedene Ansichten: Einige in der Fraktion wollen den Status quo erhalten und nur technisch sanieren, andere – darunter Nowak selbst – plädieren für eine moderne, attraktive Lösung mit Angeboten für Kinder und Jugendliche, inklusive Nutzungsmöglichkeiten wie Hubboden und einer stärkeren Einbindung des Außenbereichs. Auch der mögliche Wegfall des Bokeloher Bades spielt eine Rolle und schlägt sich in den neuen Plänen nieder. Das sei vernünftig. „Die Entscheidung über Bokeloh liegt aber weiterhin beim Rat. Ein Beschluss zum Elements bedeutet also ausdrücklich keine Festlegung gegen Bokeloh“, betont Nowak.

Die veranschlagten 38 bis 39 Millionen Euro werden kritisch gesehen. Unklar ist, wie belastbar die Zahlen sind und ob sich in der Feinplanung Kostensteigerungen ergeben. Einzelposten wie geplante Rutschen seien laut Bäderbetrieben aber nicht die Kostentreiber, wie es auf Nachfragen hieß. Nowak wünscht sich eine offene Debatte: „Am Ende braucht es Vertrauen in das Konzept und die Bereitschaft, unterschiedliche Haltungen anzuerkennen. Ich werde keine Fraktionsdisziplin einfordern.“


André Tautenhahn (tau)
André Tautenhahn (tau)
Freiberuflicher Journalist
north